Schüco Serie ASS 43/48 Correderas

- El sistema de corredera Schüco ASS 43/48 presenta una zona de aislamiento impresionantemente amplia y una amplia gama de opciones de acristalamiento, ideal para cumplir con los diferentes requisitos de aislamiento térmico en zonas de clima más cálido.
- Los rieles de acero inoxidable/aluminio de alta calidad aseguran que incluso las unidades de ventilación grandes funcionen suave y silenciosamente y, por lo tanto, mejoran la comodidad del usuario.
- Un beneficio adicional para el fabricante es que los bloques deslizantes preinstalados facilitan la instalación del mecanismo de bloqueo sin perforaciones adicionales.

ACABADOS:
- Lacados
- Anodizados
- Imitación madera mediante sublicromía
- Lacado efecto madera EZY@

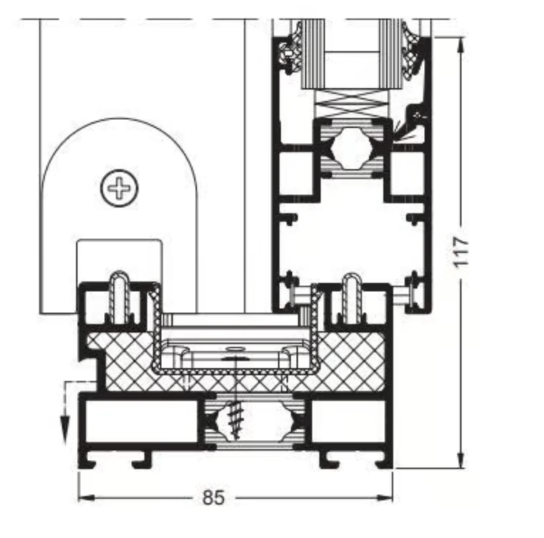
Secciones de ventana
Permeabilidad al aire
Clase 4
Estanqueidad al agua
Hasta 8A
Resitencia al viento
Hasta clase B3
Aislamiento acústico
Hasta 38 dB
Aislamiento térmico ventana (Uw)
desde 1,8 W/m²K
Aislamiento térmico perfil (Uf)
desde 3,0 W/m²K

